Our Commercial Property Lets
A rural business space
Commercial property in the heart of the Cotswolds
Manor Farm is a set of Grade 11 listed Cotswold stone buildings dating from 1910 and located just outside the village of Upper Slaughter.
Originally built as a model farm consisting of stable blocks, courtyards, and Dutch Barns the buildings are surrounded by open pastures with stunning countryside views.
Current tenants include: Colne Saddlery, Guasco Equine Veterinary Services, Bourton Podiatry, Once a Tree & James Titmus Osteopaths | Expert treatment in the Cotswolds
Renovations are underway to convert unused buildings into modern and flexible sized offices and workshops and a complete renovation of the current Dutch Barn. Sustainable energy sources, fast broadband and parking will be some of the key benefits to future and existing tenants.
Manor Farm has good access links being located close to Bourton-on-the-Water and the Fosse Way. It is within easy reach of Birmingham, Bristol and London via the national motorways which are approximately 30 mins away.
Current vacancies include:
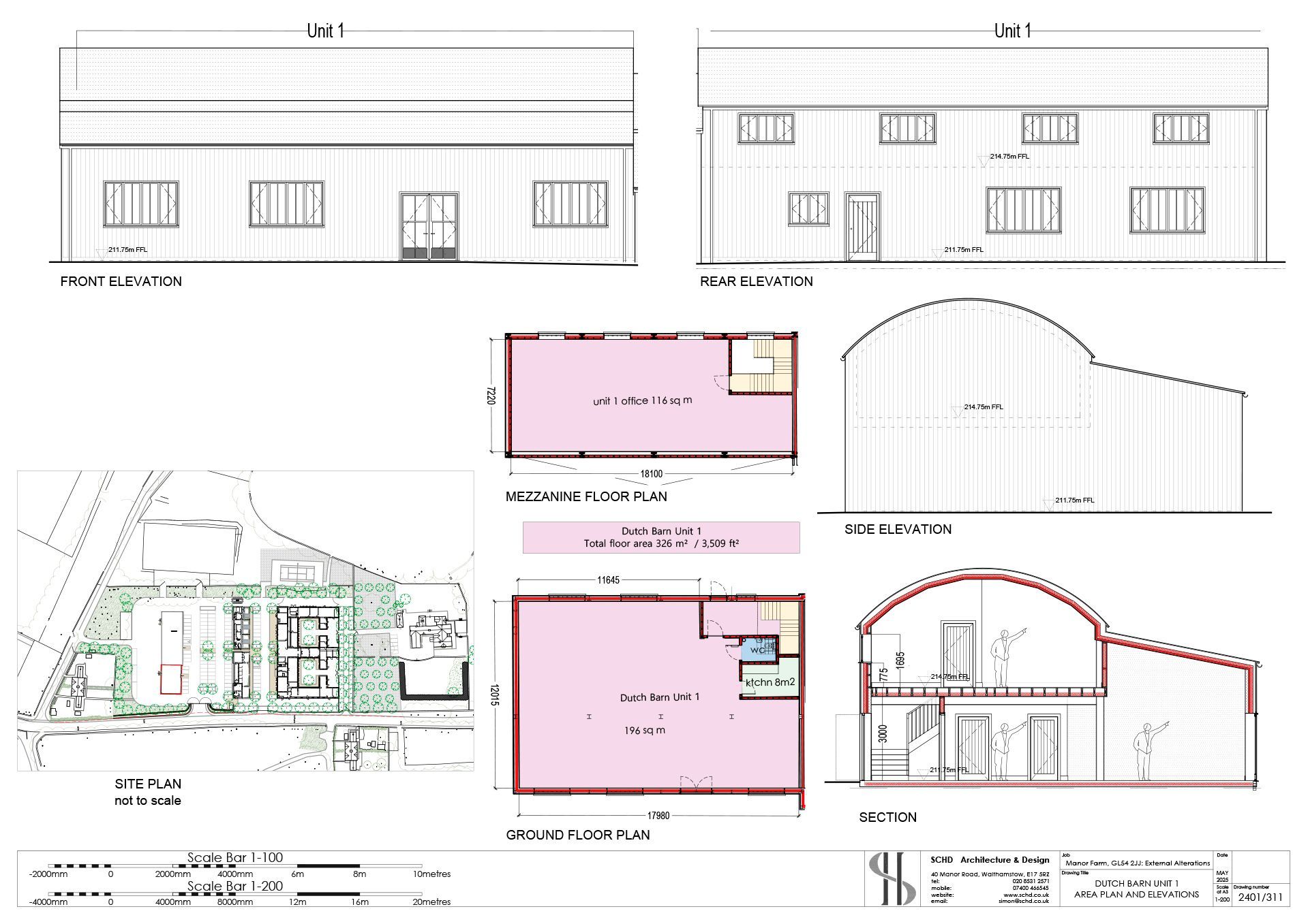
Pre-let Opportunity
£5,022 pcm
3,348 sq ft
An exciting opportunity to lease commercial space in a soon to be converted Dutch Barn situated at Manor Farm Business Park. The Barn offers stylish contemporary business space that would suit a wide variety of uses including showroom space, retail and offices.
More units available soon, for more information please contact philgordon-jones@firfarm.co.uk






